Kursy walut NBP: USD 3,98 | EUR 4,32 | CHF 4,53 |

Jesteśmy członkiem:           

Wyszukiwarka
Notes
Zgłoś ofertę
Kalkulator
zgłoś ofertę
Mieszkania
Domy
Działki
Lokale
Obiekty
Szczegóły oferty
Rodzaj oferty
dom blizniak ( sprzedaż )
Numer oferty
429451
Miejscowość
KLINISKA WIELKIE
Cena
799 000 PLN kalkulator
Cena za mkw
6 007,52 PLN mkw
Powierzchnia
133.00 m2
Pow. działki
1000.00 m2
Liczba pokoi
4
Liczba pięter
2
Rodzaj kuchni
aneks
Stan domu
do wykonczenia
Rok budowy
2024
Droga dojazdowa
utwardzona
Opis
Świeża oferta sprzedaży jaką jest bliźniak oddzielony garażami, zlokalizowany w przepięknej miejscowości Kliniska Wielkie, nieopodal Szczecina! 20 km do Szczecina, 12 km do Goleniowa!


1 Etap sprzedaży 2 Połówki -> ODBIÓR CZERWIEC 2025 -> DOSTĘPNE


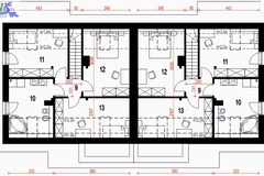
Piętro 50,70 m2
- 3 pokoje 11,90 m2 (15,80 m2), 13,90 m2 (17 m2), 11,30 m2 (16,40 m2),
- łazienka 11,90 m2 (14,10 m2).

Parter 70,20 m2
- Salon z aneksem kuchennym 31,6 m2,
- łazienka 1,40 m2,
- wiatrołap + garderoba 6,40 m2,
- pomieszczenie gospodarcze / kotłownia 5,90 m2,
+ garaż jednostanowiskowy znajdujący się w bryle budynku 21 m2.

Dom dwukondygnacyjny o powierzchni 120,90 m2
Do domu przynależny garaż i kotłownia co łącznie daje ok. 26,90 m2.
Działka o powierzchni ok. 500 m2.

Domy budowane w technologii tradycyjnej murowanej, strop monolityczny, okna PCV - 3 szybowe
Bryła budynku w klasycznym stylu, z zewnątrz ocieplenie styropianem 18 cm, elewacja wykończona tynkiem mineralnym, podbitka dachu PCV, dachówka. Dojścia i podjazd - kostka betonowa, teren wokół wyrównany. Na całym parterze oraz piętrze - ogrzewanie podłogowe. Stolarka na domy zakupiona została w całości przez producenta Marsel.


Nieruchomość w standardzie deweloperskim - Możliwe wykończenie domu pod klienta - Odbiór pod klucz.

Kupujący zwolniony z PCC 2%

Zapraszam serdecznie na prezentację.

Dodatkowe informacje: garaż

Kontakt do agenta

Atalanta Nieruchomości
Marii Konopnickiej 32
71-132 Szczecin
tel.: 914875042
email: info@atalanta.szczecin.pl
fax: 914875031

Wyślij zapytanie

Imię i Nazwisko
Telefon
E-mail
Treść zapytania

Wyrażam zgodę na przetwarzanie moich danych osobowych przez firmę dla celów związanych z działalnością pośrednictwa w obrocie nieruchomościami, jednocześnie potwierdzam, iż zostałem poinformowany o tym, iż będę posiadać dostęp do treści swoich danych do ich edycji lub usunięcia.

Wyślij ofertę

E-mail
© 2025 Atalanta Nieruchomości. Wszystkie prawa zastrzeżone.