Kursy walut NBP: USD 3,98 | EUR 4,32 | CHF 4,53 |

Jesteśmy członkiem:           

Wyszukiwarka
Notes
Zgłoś ofertę
Kalkulator
zgłoś ofertę
Mieszkania
Domy
Działki
Lokale
Obiekty
Szczegóły oferty
Rodzaj oferty
mieszkanie ( sprzedaż )
Numer oferty
428926
Miejscowość
SZCZECIN, CENTRUM
Ulica
Władysława Łokietka
Cena
338 000 PLN kalkulator
Cena za mkw
8 420,53 PLN mkw
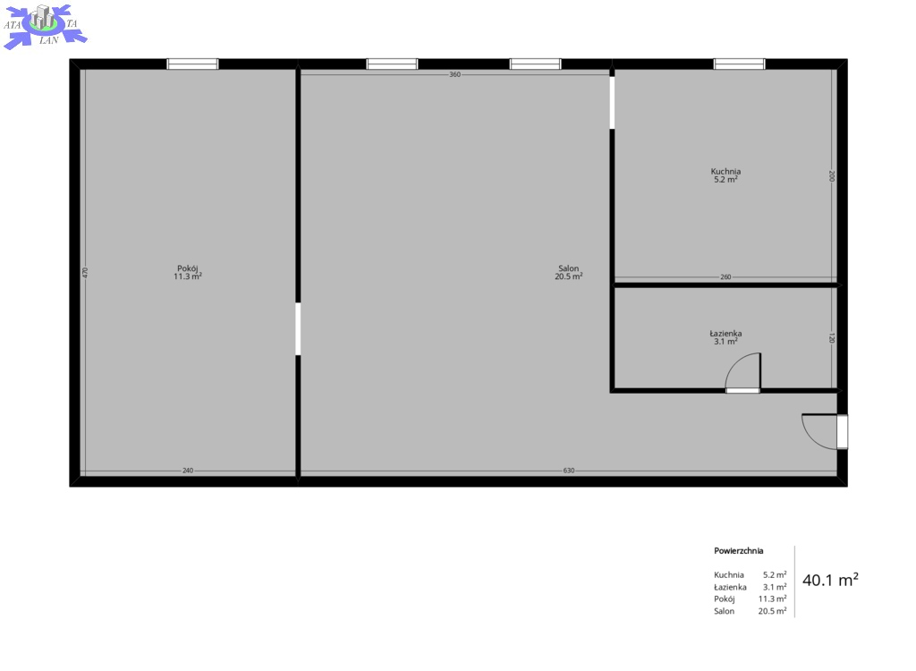
Powierzchnia
40.14 m2
Liczba pokoi
2
Piętro
3
Liczba pięter
4
Rok budowy
1940
Opis
2-pokojowe mieszkanie w Centrum, ul. Łokietka.

LOKAL MIESZKALNY
Mieszkanie znajduje się w drugiej linii zabudowy na trzecim piętrze zadbanej oficyny. Powierzchnia użytkowa 40,14 m2, na którą składają się 2 pokoje, kuchnia, łazienka i przedpokój.

Lokal obecnie wynajmowany. Możliwość przejęcia najemców na długi okres czasu.

Do mieszkania przynależy piwnica i miejsce postojowe na zamkniętym podwórku.

BUDYNEK
Przedwojenna kamienica, z zadbaną klatką schodową i zamkniętym podwórkiem.

OPŁATY
Czynsz w wysokości 300 zł. Ogrzewanie i ciepła z pieca gazowego.

LOKALIZACJA
Bardzo dobra lokalizacja. W pobliżu pełna infrastruktura (sklepy, szkoły, przedszkola).


PODSUMOWANIE
Oferta idealna na inwestycję pod wynajem lub jako pierwsze mieszkanie.

Polecam i zapraszam na prezentację.

Dodatkowe informacje: piwnica, garaż

Kontakt do agenta

Atalanta Nieruchomości
Marii Konopnickiej 32
71-132 Szczecin
tel.: 914875042
email: info@atalanta.szczecin.pl
fax: 914875031

Wyślij zapytanie

Imię i Nazwisko
Telefon
E-mail
Treść zapytania

Wyrażam zgodę na przetwarzanie moich danych osobowych przez firmę dla celów związanych z działalnością pośrednictwa w obrocie nieruchomościami, jednocześnie potwierdzam, iż zostałem poinformowany o tym, iż będę posiadać dostęp do treści swoich danych do ich edycji lub usunięcia.

Wyślij ofertę

E-mail
© 2025 Atalanta Nieruchomości. Wszystkie prawa zastrzeżone.