Kursy walut NBP: USD 3,98 | EUR 4,32 | CHF 4,53 |

Jesteśmy członkiem:           

Wyszukiwarka
Notes
Zgłoś ofertę
Kalkulator
zgłoś ofertę
Mieszkania
Domy
Działki
Lokale
Obiekty
Szczegóły oferty
Rodzaj oferty
obiekt produkcyjno_magazynowy ( sprzedaż )
Numer oferty
382980
Miejscowość
STARGARD
Cena
15 400 000 PLN kalkulator
Cena za mkw
1 974,36 PLN mkw
Powierzchnia
7800.00 m2
Rok budowy
2014
Droga dojazdowa
asfaltowa
Opis
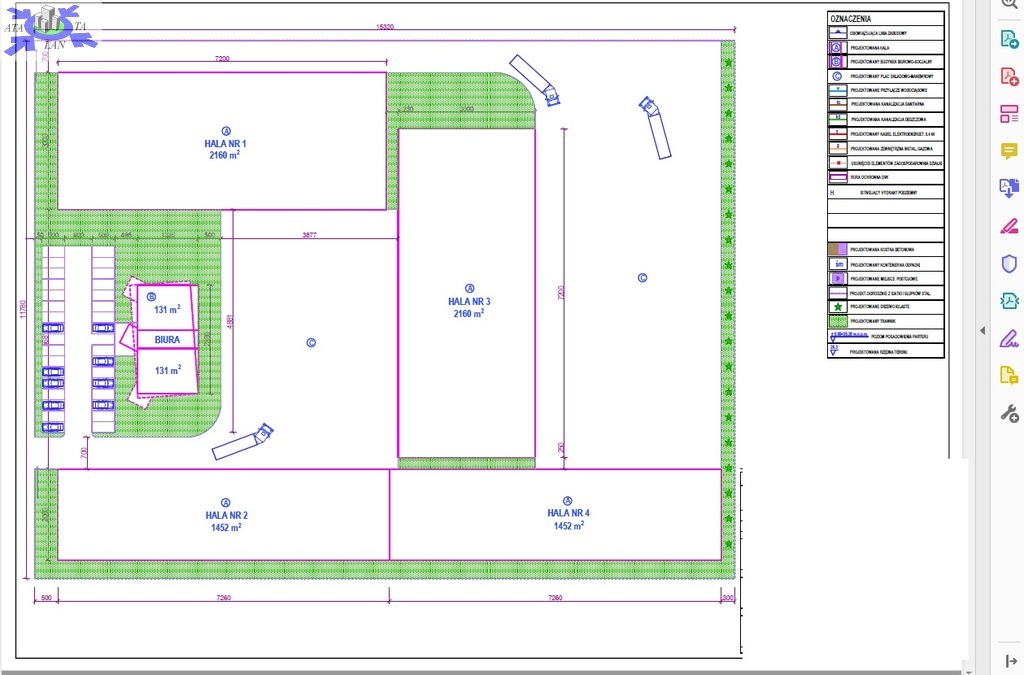
Nieruchomość zlokalizowana w Parku Nowoczesnych Technologii. Składa się z 4 hal o powierzchni 2 x 1450m2 i 2 x 2160m2 i budynku socjalno biurowego o pow. ok. 600m2. Wjazd do hal z poziomu "0", wysokość budynków 6,5m, posadzki bezpyłowe o nośności do 5000 kg/m2, świetliki dachowe w każdym budynku. Budynek biurowy dwukondygnacyjny z możliwością różnej aranżacji, wyposażony we wszystkie instalacje. Utwardzony plac do składowania, a cały teren jest ogrodzony. Powierzchnia działki wynosi blisko 2ha-własność. Przeznaczenie nieruchomości-magazynowe/produkcyjne. Nieruchomość bardzo dobrze wynajęta.

Kontakt do agenta

Atalanta Nieruchomości
Marii Konopnickiej 32
71-132 Szczecin
tel.: 914875042
email: info@atalanta.szczecin.pl
fax: 914875031

Wyślij zapytanie

Imię i Nazwisko
Telefon
E-mail
Treść zapytania

Wyrażam zgodę na przetwarzanie moich danych osobowych przez firmę dla celów związanych z działalnością pośrednictwa w obrocie nieruchomościami, jednocześnie potwierdzam, iż zostałem poinformowany o tym, iż będę posiadać dostęp do treści swoich danych do ich edycji lub usunięcia.

Wyślij ofertę

E-mail
© 2025 Atalanta Nieruchomości. Wszystkie prawa zastrzeżone.