Kursy walut NBP: USD 3,98 | EUR 4,32 | CHF 4,53 |

Jesteśmy członkiem:           

Wyszukiwarka
Notes
Zgłoś ofertę
Kalkulator
zgłoś ofertę
Mieszkania
Domy
Działki
Lokale
Obiekty
Szczegóły oferty
Rodzaj oferty
dom ( sprzedaż )
Numer oferty
427682
Miejscowość
SZCZECIN, POGODNO
Cena
1 390 000 PLN kalkulator
Cena za mkw
10 692,31 PLN mkw
Powierzchnia
130.00 m2
Pow. działki
308.00 m2
Liczba pokoi
6
Liczba pięter
3
Rodzaj kuchni
otwarta
Stan domu
bardzo dobry
Rok budowy
1930
Droga dojazdowa
asfaltowa
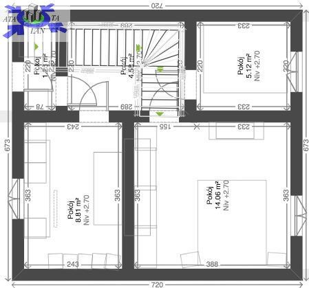
Opis
Na sprzedaż dom w zabudowie szeregowej, położony na Pogodnie, z własnym przygotowanym ogródkiem (spora ilość nasadzeń) i wolnostojącym dwustanowiskowym garażem z automatyczną bramą.

---> Dom szeregowy o powierzchni 130 m2.
---> Działka o powierzchni 308 m2.


---> W skład domu zalicza się
-> 5 pokoi (trzy na piętrze, 2 na drugim piętrze),
-> Salon z wyjściem na przestronny taras,
-> Łazienka (jedna na piętrze, druga przygotowana na drugim piętrze),
-> WC (powstaje na parterze, przebudowywany przód budynku),
-> Kuchnia znajdująca się na parterze,
-> Przedsionek,
-> Wolnostojący garaż dwustanowiskowy, znajdujący się na działce.

+ Do domu przynależny dodatkowo piwnica ok. 45 m2.

---> Najważniejsze atuty
- Wymieniona m.in. instalacja elektryczna -> każde pomieszczenie na osobnym obwodzie,
- Ogrzewanie gazowe z dwubiegowego pieca + kominek,
- Ogród z licznym nasadzeniem drzewek owocowych,
- Garaż dwustanowiskowy z automatyczną bramą,
- Smart Home,
- Dom posiada monitoring.

--> Lokalizacja Dom usytuowany jest w malowniczej okolicy Szczecina - > Pogodno, znajdujące się na lewobrzeżu w bardzo dobrze skomunikowanym miejscu. W niedalekiej odległości znajduje się wiele punktów handlowo- usługowych, m.in. ryneczek pogodno, kwiaciarnia, żabka, stacja benzynowa. Doskonała lokalizacja dla osób ceniących miejski styl życia.

Linia Autobusowa 53, 60, 67, 531
Linia tramwajowa 1, 2, 3, 4, 5, 7, 8, 9, 10, 11.


Zapraszamy do kontaktu w celu uzyskania dodatkowych informacji oraz umówienia się na prezentację.

Dodatkowe informacje: piwnica, garaż

Kontakt do agenta

Atalanta Nieruchomości
Marii Konopnickiej 32
71-132 Szczecin
tel.: 914875042
email: info@atalanta.szczecin.pl
fax: 914875031

Wyślij zapytanie

Imię i Nazwisko
Telefon
E-mail
Treść zapytania

Wyrażam zgodę na przetwarzanie moich danych osobowych przez firmę dla celów związanych z działalnością pośrednictwa w obrocie nieruchomościami, jednocześnie potwierdzam, iż zostałem poinformowany o tym, iż będę posiadać dostęp do treści swoich danych do ich edycji lub usunięcia.

Wyślij ofertę

E-mail
© 2025 Atalanta Nieruchomości. Wszystkie prawa zastrzeżone.