Kursy walut NBP: USD 3,98 | EUR 4,32 | CHF 4,53 |

Jesteśmy członkiem:           

Wyszukiwarka
Notes
Zgłoś ofertę
Kalkulator
zgłoś ofertę
Mieszkania
Domy
Działki
Lokale
Obiekty
Szczegóły oferty
Rodzaj oferty
dom wolnostojacy ( sprzedaż )
Numer oferty
424765
Miejscowość
KOBYLANKA
Cena
2 699 000 PLN kalkulator
Cena za mkw
7 496,81 PLN mkw
Powierzchnia
360.02 m2
Pow. działki
3294.00 m2
Liczba pokoi
7
Liczba pięter
2
Rodzaj kuchni
otwarta
Stan domu
bardzo dobry
Rok budowy
2008
Droga dojazdowa
utwardzona
Opis
Szanowni Państwo,

Z wielka przyjemnością mamy do zaoferowania Państwu nietuzinkowy dom położony w miejscowości Kobylanka na oś. Zalesie 10 min od Szczecina

Domu wybudowany w 2008r wg. indywidualnego projektu z rozwiązaniami dla osób ceniących sobie przestrzeń, wygodę jak i rozrywkę w swoich ścianach.
Przestronna działka o powierzchni 3294m2 z linią lasu i wyjściem z działki bezpośrednio do niego. Na samej działce liczne, wieloletnie nasadzenia tworzą unikalną przestrzeń do odpoczynku. Przestrzeń trawiasta pozwoli na rozegranie nie jednego meczu. Z uwagi na dużą przestrzeń istnieje możliwość wybudowania kolejnej nieruchomości mieszkalnej.

Powierzchnia domu wynosi około 400 m2. W skład której wchodzą
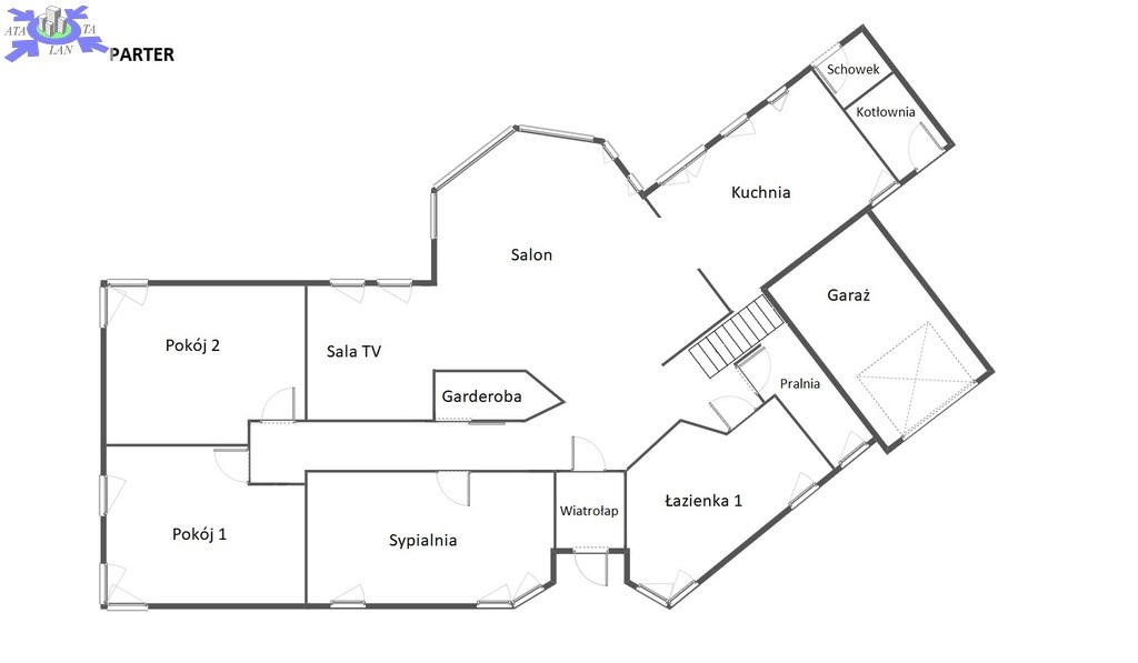
Parter
- przestronny salon o powierzchni ponad 40m2 ze ścianą okien z powalającym widokiem na ogród i ścianę lasu
- dodatkowy salon TV około 10m2
- otwarta kuchnia wraz z jadalnią i wyjściem na zadaszony taras
- 3 sypialnie
- salon kąpielowy z kabiną prysznicową, wanną i toaletą
- garderoba
- garaż 1,5 stanowiska ( auto + motor)
- kotłownia

Użytkowe poddasze
- bardzo duża sala kinowa (ponad 60m2) z nagłośnieniem, rzutnikiem - dla prawdziwego konesera kina
- przestrzeń otwarta biurowa z wyjściem na taras
- salon gościnny
- łazienka z wanną i toaletą
- sauna

Dom wybudowany w technologii tradycyjnej wg indywidualnego projektu. W roku 2023 dom został odświeżony min. malowanie, zmiana aranżacji wnętrz, wykonano wymianę podbitki na nowoczesny design i wiele innych udogodnień.

Lokalizacja - Kobylanka, oś. Zalesie zapewnia w promieniu jednego kilometra żłobek, przedszkole, szkołę, przychodnię urząd gminy, sklepy oraz centrum handlowe z myjnią i kawiarnią.
Nieruchomość z efektem WOW zaspokoi potrzeby najbardziej wymagającego klienta. Cena do negocjacji.
Zapraszam serdecznie na prezentację.








Dodatkowe informacje: garaż

Kontakt do agenta

Atalanta Nieruchomości
Marii Konopnickiej 32
71-132 Szczecin
tel.: 914875042
email: info@atalanta.szczecin.pl
fax: 914875031

Wyślij zapytanie

Imię i Nazwisko
Telefon
E-mail
Treść zapytania

Wyrażam zgodę na przetwarzanie moich danych osobowych przez firmę dla celów związanych z działalnością pośrednictwa w obrocie nieruchomościami, jednocześnie potwierdzam, iż zostałem poinformowany o tym, iż będę posiadać dostęp do treści swoich danych do ich edycji lub usunięcia.

Wyślij ofertę

E-mail
© 2025 Atalanta Nieruchomości. Wszystkie prawa zastrzeżone.