Kursy walut NBP: USD 3,98 | EUR 4,32 | CHF 4,53 |

Jesteśmy członkiem:           

Wyszukiwarka
Notes
Zgłoś ofertę
Kalkulator
zgłoś ofertę
Mieszkania
Domy
Działki
Lokale
Obiekty
Szczegóły oferty
Rodzaj oferty
mieszkanie ( sprzedaż )
Numer oferty
424526
Miejscowość
SZCZECIN, CENTRUM
Ulica
Jagiellońska
Cena
529 000 PLN kalkulator
Cena za mkw
6 002,23 PLN mkw
Powierzchnia
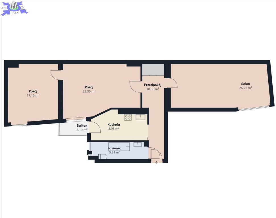
89.80 m2
Liczba pokoi
3
Piętro
3
Liczba pięter
4
Stan mieszkania
do remontu
Rok budowy
1900
Opis
Zapraszam do zapoznania się z ofertą mieszkania w samym sercu Szczecina!

Mieszkanie jest gratką dla osób ceniących sobie piękne miejsca, kamienice. Pozostawiono tu wiele oryginalnych akcentów wartych odkrycia.
Ścisłe centrum,a znajdziemy tu również ciszę i spokój.

To idealna propozycja dla tych, którzy pragną stworzyć swoje wymarzone miejsce zamieszkania, odzwierciedlające ich indywidualny styl i gust. Istnieje możliwość przearanżowania funkcjonalności i przeniesienia kuchni. Dzięki temu uzyskamy klimatyczną sypialnię z wyjściem na balkon.

Na 89,8 mkw. składają się
- duży salon z pięknym oknem,
- ustawny przechodni pokój,
- sypialnia,
- kuchnia z wyjściem na balkon,
- łazienka,
- przestronny korytarz,

Teren dookoła jest bardzo zadbany, oficyna jest ocieplona, klatka po remoncie. Do mieszkania przynależy miejsce parkingowe co jest ogromnym atutem!
Instalacja elektryczna została jakiś czas temu wymieniona.

Lokalizacja - doskonała dla osób ceniących wygodę i bliskość atrakcji miejskiego życia. Bliskość uczelni, sklepów oraz dogodne połączenia komunikacji miejskiej sprawiają, że codzienne życie staje się prostsze i bardziej komfortowe.



Dodatkowe informacje: balkon, piwnica, parking, komórka

Kontakt do agenta

Atalanta Nieruchomości
Marii Konopnickiej 32
71-132 Szczecin
tel.: 914875042
email: info@atalanta.szczecin.pl
fax: 914875031

Wyślij zapytanie

Imię i Nazwisko
Telefon
E-mail
Treść zapytania

Wyrażam zgodę na przetwarzanie moich danych osobowych przez firmę dla celów związanych z działalnością pośrednictwa w obrocie nieruchomościami, jednocześnie potwierdzam, iż zostałem poinformowany o tym, iż będę posiadać dostęp do treści swoich danych do ich edycji lub usunięcia.

Wyślij ofertę

E-mail
© 2025 Atalanta Nieruchomości. Wszystkie prawa zastrzeżone.