Kursy walut NBP: USD 3,98 | EUR 4,32 | CHF 4,53 |

Jesteśmy członkiem:           

Wyszukiwarka
Notes
Zgłoś ofertę
Kalkulator
zgłoś ofertę
Mieszkania
Domy
Działki
Lokale
Obiekty
Szczegóły oferty
Rodzaj oferty
dom blizniak ( sprzedaż )
Numer oferty
424301
Miejscowość
MIERZYN
Cena
819 000 PLN kalkulator
Cena za mkw
6 814,5 PLN mkw
Powierzchnia
117.25 m2
Pow. działki
170.00 m2
Liczba pokoi
4
Liczba pięter
1
Stan domu
idealny
Rok budowy
2025
Droga dojazdowa
asfaltowa
Opis


Nowoczesne apartamenty w samym sercu Mierzyna, CENA od 699.000 do 769.000 zł.

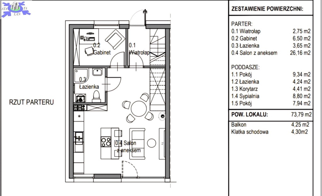
Urokliwe, kameralne osiedle w Mierzynie tworzyć będzie osiem nowoczesnych energooszczędnych domów dwurodzinnych, w których zaprojektowano szesnaście apartamentów. Lokale 5-pokojowe, każdy o powierzchni użytkowej po 73,79 m2 (powierzchnia całkowita lokalu wynosi 117,25 m kw.), posiada balkon i przydomowym ogródek. Do każdego apartamentu przynależą dwa miejsce postojowe przed budynkiem. Standard wykończenia lokali -deweloperski i obejmuje wykonanie m in. ogrzewania podłogowego w każdym z pomieszczeń, systemu domofonowego i instalacji pod kominek. Na lokal przysługuje 5-letnia rękojmia od dewelopera. Osiedle całkowicie ogrodzone, w którym przewidziano dwa osobne wjazdy z bramą otwieraną na pilota. Inwestycję wyróżnia niezaprzeczalnie interesująca i gustowna architektura z dozą elegancji. Energooszczędność domów mają zapewnić przyjęte rozwiązania architektoniczne izolacje ścian i podłóg, stolarka okienna. Dla miłośników dwóch kółek pomyśleliśmy o wiacie osiedlowej ze stojakami dla rowerów. Zakończenie prac budowlanych całego osiedla nastąpi w trzecim kwartale 2025 roku.


Atuty nieruchomości

Funkcjonalny rozkład pomieszczeń
Powierzchnie lokali 73,79 m kw. (powierzchnia całkowita 117,25 m kw.)
Do każdego lokalu przynależy balkon i ogródek
Ponadnormatywna wysokość pomieszczeń na parterze 275 cm, na I piętrze 260 cm
W standardzie wykonana ogrzewanie podłogowe i instalacja pod kominek.
Dwa miejsca postojowe GRATIS
Wiata osiedlowa ze stojakami na rowery
Idealna lokalizacja blisko ścieżek rowerowych, terenów sportowych i rekreacyjnych
Dojazd od ul. Topolowej nową infrastrukturą drogową

Zapraszam na prezentację.



Dodatkowe informacje: garaż

Kontakt do agenta

Atalanta Nieruchomości
Marii Konopnickiej 32
71-132 Szczecin
tel.: 914875042
email: info@atalanta.szczecin.pl
fax: 914875031

Wyślij zapytanie

Imię i Nazwisko
Telefon
E-mail
Treść zapytania

Wyrażam zgodę na przetwarzanie moich danych osobowych przez firmę dla celów związanych z działalnością pośrednictwa w obrocie nieruchomościami, jednocześnie potwierdzam, iż zostałem poinformowany o tym, iż będę posiadać dostęp do treści swoich danych do ich edycji lub usunięcia.

Wyślij ofertę

E-mail
© 2026 Atalanta Nieruchomości. Wszystkie prawa zastrzeżone.