Kursy walut NBP: USD 3,98 | EUR 4,32 | CHF 4,53 |

Jesteśmy członkiem:           

Wyszukiwarka
Notes
Zgłoś ofertę
Kalkulator
zgłoś ofertę
Mieszkania
Domy
Działki
Lokale
Obiekty
Szczegóły oferty
Rodzaj oferty
dom ( sprzedaż )
Numer oferty
421438
Miejscowość
SZCZECIN, GUMIEŃCE
Cena
1 299 000 PLN kalkulator
Cena za mkw
9 345,32 PLN mkw
Powierzchnia
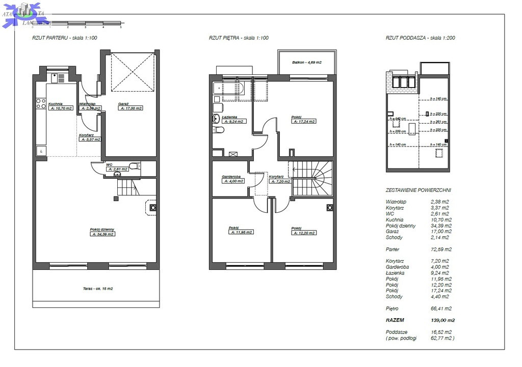
139.00 m2
Pow. działki
178.00 m2
Liczba pokoi
4
Rodzaj kuchni
otwarta
Stan domu
do wykonczenia
Rok budowy
2023
Opis
Nowa inwestycja na Gumieńcach, w atrakcyjnej lokalizacji. W otoczeniu niska zabudowa jednorodzinna. Do sprzedaży dom w zabudowie szeregowej - środkowy segment.

Nieruchomość o powierzchni 139 m2 i dodatkowo poddasze, posadowiona na działce o pow.178 m2
PARTER o powierzchni 72,59 m2 z garażem w bryle budynku 17 m2. Wysokość pomieszczeń 290 cm. Na tym poziomie znajdują się wiatrołap, korytarz, wc, kuchnia i salon z wyjściem do ogrodu.
PIĘTRO o powierzchni 66,41 m2. Wysokość pomieszczeń 270 cm. Na tą powierzchnię składają się korytarz, garderoba, łazienka, trzy pokoje.
Nad całością znajduje się poddasze o pow. użytkowej 16,52 m2 (po podłodze 62,77 m2)
Szczegółowy rozkład pomieszczeń i powierzchnie znajdziecie Państwo na załączonym rzucie.

Budynek z cegły ceramicznej typu Porotherm, docieplony styropianem 15 cm. Zdwojone ściany między sąsiadami. Dach dwuspadowy, dachówka cementowa. Okna PCV-3 szybowe, w salonie drzwi rozsuwane z zewnętrznymi roletami sterowanymi elektrycznie. Została wykonana instalacja alarmowa z centralą i czujnikami, instalacja monitoringu, internetowa i TV oraz centralnego odkurzania.
Ogrzewanie podłogowe, piec dwufuncyjny.
Teren zagospodarowany, ogrodzony. Przed garażem podjazd z miejscem parkingowym.
Strona kupująca nie płaci podatku PCC.
Po więcej szczegółów zapraszam do bezpośredniego kontaktu i na prezentację.

Dodatkowe informacje: garaż

Kontakt do agenta

Atalanta Nieruchomości
Marii Konopnickiej 32
71-132 Szczecin
tel.: 914875042
email: info@atalanta.szczecin.pl
fax: 914875031

Wyślij zapytanie

Imię i Nazwisko
Telefon
E-mail
Treść zapytania

Wyrażam zgodę na przetwarzanie moich danych osobowych przez firmę dla celów związanych z działalnością pośrednictwa w obrocie nieruchomościami, jednocześnie potwierdzam, iż zostałem poinformowany o tym, iż będę posiadać dostęp do treści swoich danych do ich edycji lub usunięcia.

Wyślij ofertę

E-mail
© 2025 Atalanta Nieruchomości. Wszystkie prawa zastrzeżone.