Kursy walut NBP: USD 3,98 | EUR 4,32 | CHF 4,53 |

Jesteśmy członkiem:           

Wyszukiwarka
Notes
Zgłoś ofertę
Kalkulator
zgłoś ofertę
Mieszkania
Domy
Działki
Lokale
Obiekty
Szczegóły oferty
Rodzaj oferty
lokal ( sprzedaż )
Numer oferty
417720
Miejscowość
SZCZECIN, POMORZANY
Cena
460 000 PLN kalkulator
Cena za mkw
10 952,38 PLN mkw
Powierzchnia
42.00 m2
Liczba pokoi
3
Liczba pięter
5
Rok budowy
1996
Droga dojazdowa
asfaltowa
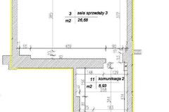
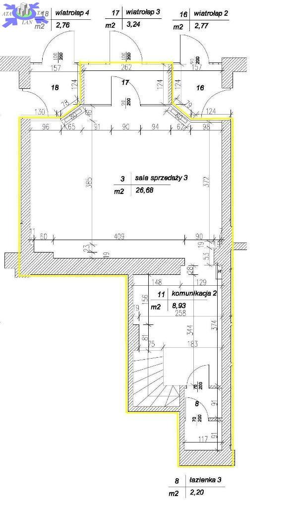
Opis
Na sprzedaż lokal w zabudowie ( w ciągu lokali handlowo - usługowych ) zlokalizowany przy bardzo ruchliwej i dobrze skomunikowanej ulicy na Pomorzanach. Oferowana powierzchnia to 42,1 m2, w tym sala sprzedaży, pomieszczenie biurowe/magazyn oraz toaleta. Na podłodze terakota, ściany malowane, w części glazura. Sufit podwieszany z zamontowanym oświetleniem rastrowym. Ogrzewanie i ciepła woda z sieci miejskiej. Lokal posiada nowe, aluminiowe witryny wystawowe. Wejście do lokalu z ulicy, poprzez wiatrołap. Możliwość powieszenia reklamy w obrębie lokalu. Cały budynek jest monitorowany, kamery znajdują się przed lokalem., Duży ruch pieszych, miejsca parkingowe ogólnodostępne. W bezpośredniej bliskości sklep Biedronka, liczne banki i sklepy wielu branż, w pobliżu Tesco i CH MOLO, otoczenie osiedli mieszkaniowych.

Kontakt do agenta

Atalanta Nieruchomości
Marii Konopnickiej 32
71-132 Szczecin
tel.: 914875042
email: info@atalanta.szczecin.pl
fax: 914875031

Wyślij zapytanie

Imię i Nazwisko
Telefon
E-mail
Treść zapytania

Wyrażam zgodę na przetwarzanie moich danych osobowych przez firmę dla celów związanych z działalnością pośrednictwa w obrocie nieruchomościami, jednocześnie potwierdzam, iż zostałem poinformowany o tym, iż będę posiadać dostęp do treści swoich danych do ich edycji lub usunięcia.

Wyślij ofertę

E-mail
© 2025 Atalanta Nieruchomości. Wszystkie prawa zastrzeżone.