Kursy walut NBP: USD 3,98 | EUR 4,32 | CHF 4,53 |

Jesteśmy członkiem:           

Wyszukiwarka
Notes
Zgłoś ofertę
Kalkulator
zgłoś ofertę
Mieszkania
Domy
Działki
Lokale
Obiekty
Szczegóły oferty
Rodzaj oferty
mieszkanie ( sprzedaż )
Numer oferty
414202
Miejscowość
GOLENIÓW
Ulica
Rybacka
Cena
659 000 PLN kalkulator
Cena za mkw
5 168,63 PLN mkw
Powierzchnia
127.50 m2
Liczba pokoi
4
Liczba pięter
1
Rodzaj kuchni
otwarta
Stan mieszkania
do wykonczenia
Rok budowy
2023
Droga dojazdowa
utwardzona
Opis
Zapraszamy do zapoznania się z ofertą sprzedaży lokalu mieszkalnego w zabudowie bliźniaczej z użytkowym poddaszem.
Nieruchomość zlokalizowana przy ul. Rybackiej w Goleniowie - 2,5 km od centrum miasta.

Przedmiotem sprzedaży jest segment budynku w stanie deweloperskim, wybudowany w technologii tradycyjnej według projektu "DOM W CYKLAMENACH 5" z niewielkimi modyfikacjami. Charakteryzuje się prostą, zwartą bryłą. Idealny dla rodziny 2+2 lub 2+3.
Położony na działce o pow. 500 m2, z pośrednim dostępem do drogi publicznej poprzez utwardzoną drogę wewnętrzną.

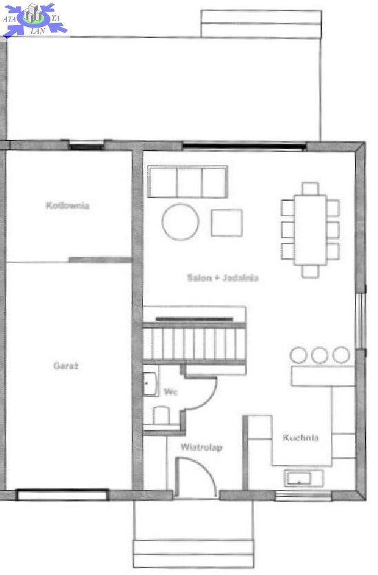
Lokal mieszkalny dwukondygnacyjny, o łącznej pow. użytkowej 127,5 m2 (w tym pow. mieszkalna 102,10 m2 + garaż 25,40 m2), oferowany jest w dwóch wersjach - Z CZTEREMA LUB Z PIĘCIOMA POKOJAMI.

Składa się z następujących pomieszczeń
PARTER (pow. użytkowa z garażem 66,42 m2)
- wiatrołap 5,87 m2
- salon 26,13 m2
- kuchnia 7,46 m2
- WC 1,56 m2
- garaż 25,40 m2

PODDASZE UŻYTKOWE (pow. użytkowa 61,08 m2 - pow. całkowita 66,38 m2)
- sypialnia 1 - 7,78 m2 (9,34 m2),
- sypialnia 2 - 14,54 m2, (15,6 m2),
- sypialnia 3 - 10,10 m2(10,32 m2),
- łazienka 7,44 m2 (9,11 m2),
- garderoba 3,78 m2 (4,55 m2)
- przedpokój 17,46 m2

KONSTRUKCJA
- Ściany konstrukcyjne - bloczki beton komórkowy Solbet 24 cm,
- Strop - płyty żelbetowe, wielokanałowe typu Żerań,
- Schody wewnętrzne - jednobiegowe, żelbetowe, prefabrykowane,
- Ocieplenie ścian zewnętrznych - styropian 18 cm,
- Pokrycie dachu - blacha na rąbek,

STANDARD WYKOŃCZENIA
- drzwi wejściowe Wiśniowski,
- brama garażowa Wiśniowski segmentowa wraz z napędem,
- okna PCV 3-szybowe Wiśniowski,
- instalacja - elektryczna, wodna, kanalizacyjna, RTV,
- system ogrzewania podłogowego w całym domu,
- ocieplenie dachu - wełna mineralna 20 cm lub pianą PUR,
- podjazd i ścieżka do domu - kostka betonowa,
- tynk elewacyjny silikatowy, puc,
- taras wykonany z kostki brukowej,

Media - woda z sieci miejskiej, szczelny zbiornik bezodpływowy, prąd.

Pompa ciepła Firmy Bosch. Instalacja z możliwością podłączenia paneli fotowoltaicznych oraz rekuperacji.

DODATKOWE MOŻLIWOŚCI
- na odpowiednim etapie budowy istnieje możliwość modyfikacji ścianek wewnętrznych - działowych,
- wykończenie nieruchomości POD KLUCZ - cena do indywidualnego ustalenia z Developerem,
- indywidualny harmonogram płatniczy - do uzgodnienia z Developerem,

Cena zawiera podatek VAT - 8%. Kupujący zwolniony z podatku 2% od czynności cywilnoprawnych.

ZAPRASZAMY NA PREZENTACJE i DO SKŁADANIA OFERT ZAKUPU !!!

Dodatkowe informacje: garaż, parking

Kontakt do agenta

Atalanta Nieruchomości
Marii Konopnickiej 32
71-132 Szczecin
tel.: 914875042
email: info@atalanta.szczecin.pl
fax: 914875031

Wyślij zapytanie

Imię i Nazwisko
Telefon
E-mail
Treść zapytania

Wyrażam zgodę na przetwarzanie moich danych osobowych przez firmę dla celów związanych z działalnością pośrednictwa w obrocie nieruchomościami, jednocześnie potwierdzam, iż zostałem poinformowany o tym, iż będę posiadać dostęp do treści swoich danych do ich edycji lub usunięcia.

Wyślij ofertę

E-mail
© 2025 Atalanta Nieruchomości. Wszystkie prawa zastrzeżone.